Welcome to PremiumPropertiesBG.com - The real estate agency for you. We are pleased to be able to offer for sale exclusive Bulgarian Properties. Whether seeking your dream home in the sun or planning to buy Bulgarian property for investment, Premium Properties BG can help you find the ideal property. We also assist with all purchase considerations including finance advice, independent Bulgarian legal advice. Search through our databases now for new ad’s including the hottest investment opportunities or find your dream home that's ready to move into.  Discover Bulgaria - the perfect destination for the independent traveller who loves adventure. Hike in the Rila Mountains, soak in curative mineral springs, relax in the countryside or sun yourself by the Black Sea.
Search


Search

"Bankya Heights" - New Modern Residential Complex!!!

Sofia , North-West Bulgaria
€ 1,120
Like this property?
Call +359 897 800 644 OR Request Details
Description
Floor plans
Map
Sold 2 Bedrooms | Off Plan

Key Features

Facilities

  • Water
  • Electricity
  • Lovely View

Full Description

Bankya Heights SOLD
"Bankya Heights" - 1120euros per sq.m New Modern Residential Complex in a perfect location in the prestige beautiful town of Bankya

 

First-class gated-type complex, which consists of 52 luxury, elegant and very functional apartments.
The complex offers a very high standard of living including gym, sauna, family celebration room, children playground, barbeque, security system, natural gas heating system, private owned gardens of ground level apartments, wide open public space with great landscaping, and other added value features.
This complex is located in a top location in Bankya, which is Sofia's district most attractive and desired place to live in, valued for its clean environment, calm atmosphere and beautiful views.
The absence of other high buildings in the area guarantees a beautiful panoramic view to Sofia City, as well as to the beautiful Vitosha & Lulin mountain.

It is located only 20 minutes driving away from Sofia city center and within a walking distance from Bankya center.

The complex has a perfect location (see maps). On one hand it is a walking distance form Bankya center and on the other hand it provides atmosphere of countryside because of the great unblocked nature view.
The 4 beautiful buildings have east-west orientation with a beautiful open pastoral nature view and great landscaping in its open wide green space between the buildings.
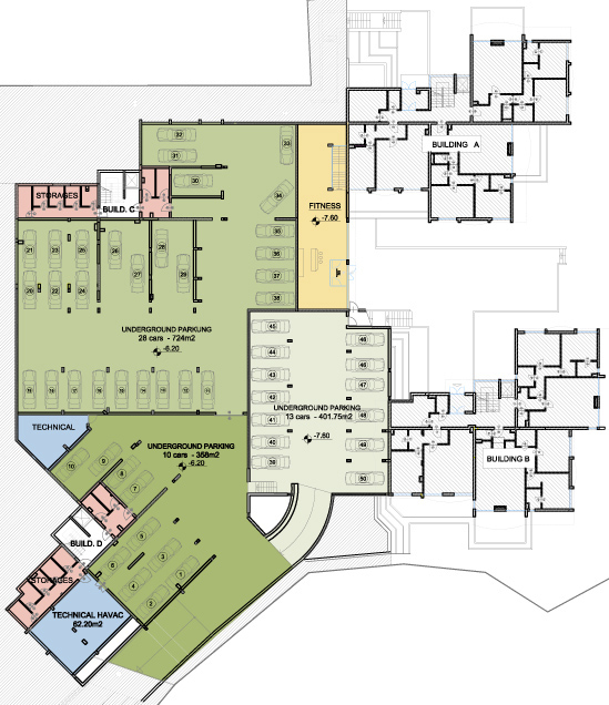
There is convenient access from the underground garages to each apartment through the elevators and 3 staircases.

The apartments:
The complex consists of 4 identical buildings, 4 stories each, in each one 13 apartments, so the project is a total of 52 apartments.

Bankya Heights offers a wide selection of modern, elegant and very functional apartments where you can choose from:
 1 bedroom apartments of 82 - 86 sqm. 
  2 bedroom apartments of 119 - 121 sqm.                                
 2 bedroom duplex(mezonets) apartments of 119-121 sqm.
 3 bedroom apartments of 119 - 160 sqm.

Neighbouring apartments can be joined together.
We also offer the privilege to buy underground spacious garage and private storage place.
Few open parking spaces at the ground level are also available.

Facilities and added value features:
 Gym
 Sauna
 Family gathering and celebrations hall
Children play ground
 Barbeque 
Underground parking for apartment owners and an additional over-ground parking for apartment owners and guests.
 24 hours security (COT) and exclusive monitored access to the complex and to each building by CCTV security system, TV and Internet Cables. 
The whole project is supplied by natural gas (propane) for cheap heating and household needs. 
Low prices for maintenance. 
Privately owned gardens attached to ground level apartments
Spacious inner yard with great landscaping
Marvellous pastoral nature view

Completion Date
All building works are scheduled to be carried out and completed until October 2009.
Additional time may be needed for the fully finishing works over specific apartments.

Maintenance of the complex:
24 hour security shall be provided by COT.
The cleaning and maintenance of the communal areas in the project, including gardening, will be done in the first year by a reputable company selected by the developer.
After the first year of occupation, the tenant\'s representatives shall be free to hire any company as they may deem right.

After-Sale Management Services
We also offer complete property management services which include rentals, re-sales and furniture and finishing options.

 

 

 

 

 

 

Facilities

  • Water,
  • Electricity,
  • Lovely View

Properties by Basic Location

Similar Properties
Search other properties
Property types
Region
By Price
Ref. No.



Burgas Office
Premium Properties BG Ltd.
2A, Ferdinandova Street, 
Burgas 8000, Bulgaria
Tel: 00359 56 99 45 40
Mob: 00359 897 800 644
info@premiumpropertiesbg.com

Elhovo Office
Premium Properties BG Ltd.
7, Targovska Street
Elhovo, 8700, Bulgaria
Tel: 00359 56826186
info@premiumpropertiesbg.com

UK Office
Premium Properties BG Ltd.
Tel: 0740 111 5397
E-mail: camilla@premiumpropertiesbg.com


Properties in Bulgaria by Type
Properties in Bulgaria by Town/Village
Properties in Bulgaria by Basic Location
Properties by price limits